несущий деревянный каркас из бруса 200х200 мм и доски 50х200 мм, утеплитель 200 мм
Кровля
утепленная, Grand line металлочерепица / гибкая черепица Shinglas
Перекрытие
каркасное из бруса 200х200 мм и доски 50х200 мм
Отделка фасада
имитация бруса с финишной покраской краской Renner, окна ПВХ Kaleva vario
Внутренняя отделка
отделка стен: имитация бруса с окраской; потолки натяжные или гипсокартон
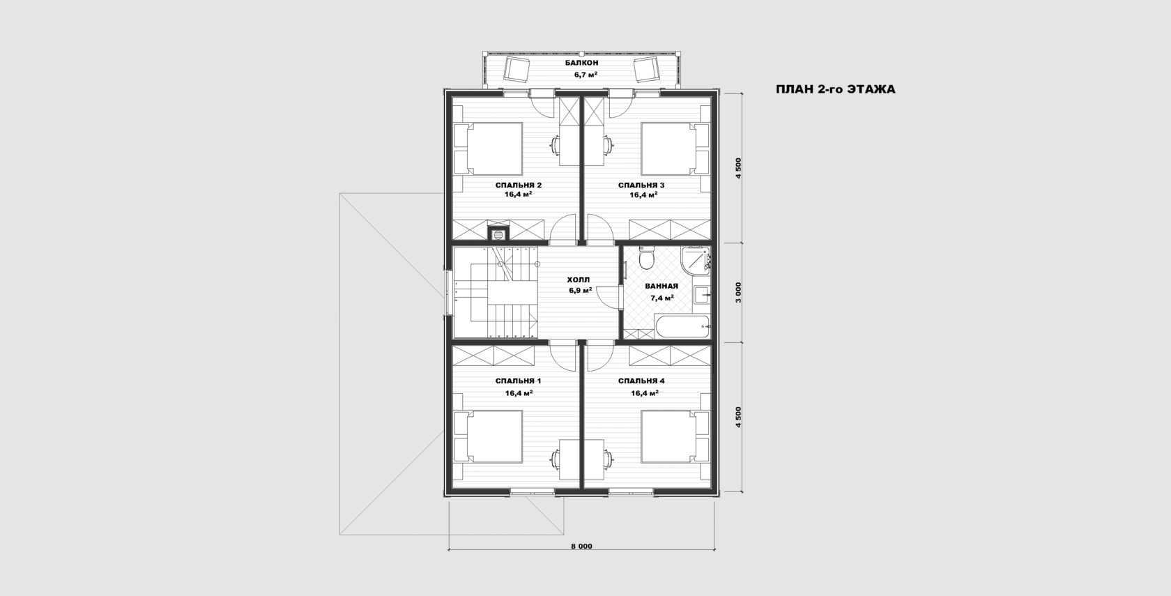
27,1 м
2
площадь террас и балконов
192,0 м
2
площадь строительная (осевая)
165,6 м
2
площадь помещений
4 спальни
Комфортные спальни 16 кв.м.
34,0 м
кухня-гостиная
2
Инженерия
ввод в дом сетей канализации, водопровода, электричества
Покупка в кредит на выгодных условиях
Группа МЕТА - аккредитованный партнер «ДОМ.РФ» и Сбербанка. Благодаря государственным субсидиям, профильные банки предлагают наиболее выгодные условия по ипотеке.
Строительство каждого дома можно разделить на несколько основных этапов, а именно: земляные работы и возведение фундамента, стеновой комплект и перекрытие, монтаж кровли, благоустройство придомовой территории и отделка. Вы можете оплатить стоимость дома сразу или разбить оплату на несколько комфортных этапов.
В базе мы используем долговечный и прочный фундамент на винтовых (или железобетонных) сваях с обвязкой из металлопрофиля, надежный силовой каркас из бруса.
Несущие стены и перегородки
Каркас из бруса и доски. Стены заполняются утеплителем и закрываются доской. Внутренние перегородки, перекрытия - из бруса. Полное антисептирование всех деревянных конструкций каркаса.
Внутренняя отделка
Внутренняя отделка под ключ, - стены обшиваются деревом, устанавливаются двери и межэтажная лестница. При установке каркаса сразу делается разводка электросети. Потолки: натяжные, гипсокартон под покраску или отделка под дерево.
Кровля и чердачные перекрытия
Возможны различные варианты: металлочерепица, мягкая черепица и т.д. Перекрытия - каркасные из доски и бруса. Надежная защита от влаги и качественная пароизоляция обеспечивают беспроблемную эксплуатацию.
Отделка фасада
Внешняя отделка дома выполняется под ключ - с итоговой покраской. Устанавливаются окна: двухкамерный стеклопакет со всеми режимами открывания. Также устанавливаются крыльцо вместе с лестницей и утепленная входная дверь.
Дополнительные опции
По желанию заказчика могут быть выбраны другие материалы и фурнитура, - как во внутренней, так и во внешней отделке. Их стоимость рассчитывается индивидуально и после предварительного обсуждения с заказчиком.
Одно из основных преимуществ каркасных коттеджей, это, безусловно, цена. Если взять аналогичный дом, построенный по другой технологии, сравнить его с каркасным, - то преимущество, конечно, будет за каркасным домом.
В столичном регионе самым высоким спросом пользуется загородная недвижимость в доступном сегменте: участки без подряда в доступном сегменте стоимостью до 1,5 млн рублей и дома в диапазоне 2 - 2,5 млн рублей. Например, вместе с участком в 7,5 соток дом площадью 97кв. метров предлагается за 2,1 млн рублей.
Для многих потенциальных загородных покупателей строительство каркасного дома является оптимальным решением. Их приобретают как для постоянного проживания, так и для строительства дачи. Это комфорт, который вы сможете себе позволить!
Консультация
Экологичное решение
В каркасном домостроительстве используются различные качественные материалы. Для того, чтобы сделать крепкий, прочный и надежный каркас, применяется доска, бревно и брус. В качестве утеплителей – каменная вата или базальтовая вата. В некоторых домах также используется экструдированный пенополистерол.
Большинство перечисленных материалов является натуральными. Это объясняется высокие экологические характеристики. Полимеры также не производят вредных испарений, и полностью безопасны. В настоящее время, когда все стараются следить за экологией, состоянием окружающей среды и чистотой воздуха, каркасные дома отличаются высокой популярностью. Эта технология не вредит природе и безопасна для человека.
Консультация
Сроки строительства
Высокий спрос на данный продукт обусловлен его ценовой доступностью и сроками строительства. Основной покупатель нас сегодняшний день – молодая семья с детьми. Такой покупатель, как правило, не готов ждать долго – годами завершения строительства своего дома. Они хотят жить здесь и сейчас. Они хотят заехать завтра, а, может быть, даже сегодня.
Быстрота возведения достигается в силу нескольких причин. Прежде всего для каркасного дома не нужен тяжелый фундамент, - достаточно свайного или ленточного. Этот фактор не только сокращает скрои, но также удешевляет строительство.
Затем сама технология возведения каркаса и заполнения его утеплителем отработана, позволяет быстро собирать дом: стены собираются из бруса с утеплителем, а потом поднимаются и крепятся. В результате на строительство дома 100-200 кв. метров с соблюдением всех технологических нюансов уходит всего 2-3 месяца. Для сравнения на возведение коттеджа из газоблоков или кирпича уходит 810 месяцев.
Консультация
Ремонт без пыли и грязи
Удобство эксплуатации каркасных домов заключается в (относительной) простоте ремонта. Через 40-50 лет проживания можно выполнить реконструкцию стен: разобрать и починить отдельные части, заменить утеплитель и т.д. Это технологично и удобно.
Важным плюсом такого ремонта является минимум дискомфорта. Если в каменном или бетонном доме любой ремонт – это штробление, пыль, грязь (из-за чего проживающей семье приходится переезжать на период ремонтных работ), то в каркасном доме это исключено. Любой ремонт может пройти без достаточно тихо, с минимумом мусора и не потревожит жильцов своего дома.
Консультация
Энергоэффективность
При доступной цене, быстроте строительства каркасные дома обладают высокой энергоэффективностью, что также является важным преимуществом этого вида домостроения.
Действительно, каркасные дома обладают очень высокой энергоэффективностью. Главной причиной этого является то, что весь дом полностью – каркас, подкровельное пространство, полы – по всему контуру обеспечиваются качественным утеплением. Благодаря этому создается очень теплый контур. Тепло и энергия, затрачиваемые на обогрев дома, не выходят наружу. В результате, благодаря использованию каркасной технологии и всех связанных с ней методов, получается лучший энергосберегающий эффект.
Консультация
Современная архитектура
В проектах каркасных домов Группы МЕТА реализуются идеи демократичной американской архитектуры и модного скандинавского стиля.
Американская классическая загородная архитектура сохраняет свои особенности с момента возникновения в середине 20 века до наших дней. Это доступное, демократичное жилье, максимум площади по оптимальной цене. Архитектура таких коттеджей отличается простотой, лаконичностью: прямоугольные формы, большие выступы. В отделке обязательно используется белый цвет, сочетающийся со светло-серым, темно-синим и т.п. Окна, водостоки и т.п. выделяются белым, определяя четкость линий и индивидуальность дома. Архитектура домов отличается функциональностью, практичностью и изящной простотой.
Скандинавский архитектурный стиль отличается изысканной простотой и сдержанностью. Это простая геометрия форм, лишенная пафосных декоративных элементов. Цветовой гамме преобладают природные оттенки: серо-зеленый, бежевый, землисто-черный, коричневый. Часто присутствуют контрасты: если стены темные, оконные рамы будут светлыми (и наоборот). Эстетическая форма позволяет сделать акцент на качествах и фактуре строительного материала – в данном случае, натурального дерева. Дома в скандинавском стиле всегда привлекают взгляд и гармонично смотрятся на фоне окружающей природы.
Консультация
Создайте дом, который удовлетворит ваши желания
Дом дому рознь, один и тот же проект может быть выполнен по-разному, с разной итоговой ценой, в зависимости от выбраных параметров.
Отделка наружных стен
A TRUE NORTHERN PLAYA
Get around by train, bus, car, steamship, cruise ship, bicycle, skis or sleigh. Relax and enjoy your time
Read more
A TRUE NORTHERN PLAYA
Get around by train, bus, car, steamship, cruise ship, bicycle, skis or sleigh. Relax and enjoy your time
Стильный и демократичный вариант отделки внешних стен.
Сайдинг
Отделка сайдинга является самым распространенным варинтом оформления стен загородного дома. При этом между панелями и стеной оставляется зазор, который позволяет циркулировать воздуху. Это позволяет удалить влагу со стен и, тем самым, защитить их. При этом внешний облик дома преображается, - он выглядит ярким и свежим.
Технология вентилируемого фасада позволяет «облагородить» (и даже полностью изменить облик) старого дома любой конструкции. Наиболее демократичным вариантом является виниловый сайдинг. Более прочным и, соответственно дорогим, будет отделка фиброцементным сайдингом. Это современный и технологичный материал. Заказчики могут выбрать панели, выполненные под дерево, натуральный камень, бетон и др. Существует большое разнообразие цветов и оттенков. Еще одним достоинством материала является удобство установки и обработки панелей (они легко режутся).
Преимущества отделки сайдингом: • Привлекательный внешний вид. • Большой ассортимент в разны ценовых сегментах – от доступного до премиального. • Удобство в обработке и установке. • Долговечность и надежность.
Консультация
Блокхаус
Отделка стен обшивочной доской блокхаус привлекает тех, кто следует экологичным трендам и хочет, чтобы его дом выглядел изысканно. Стоимость материала, используемого в блокхаусе, зависит от породы дерева (сосна, ель, лиственница или тропические растения) и обработки, а также качества материала внутри отобранной породы. Доска с минимумом трещин, сучков и шероховатостей стоит дороже.
Блокхаус собирается по технологии шип-паз. Поскольку данный отделочный материал имитирует бревно, он также нуждается в дополнительной обработке. Разные составы применяются после монтажа для защиты от солнечного света, осадков, приданию пожароустойчивости. Блокхаус необходимо регулярно (раз в несколько лет) подвергать соответствующей обработке.
Преимущества блокхауса: • Эстетика и экологичность. • Технологичность и удобство в монтаже. • Разнообразный выбор материалов в различных ценовых сегментах.
Консультация
Фиброцементные панели
Фиброцементные панели производятся из композитного цемента и целлюлозных волокон. Это инновационный продукт, отличающийся высокой прочностью. Наряду с этим панели имеют широкий выбор популярных цветовых оттенков и рельефа поверхностей.
Фиброплиты состоят из трех слоев: водоотталкивающей части, фиброцементной основы декоративной поверхности. Технология производства подразумевает прессование и термообработку, которые обеспечивают прочность материала и долговременную эксплуатацию (в том числе благодаря устойчивости к солнечным лучам). Панели из фиброцемента прекрасно переносят перепады температур зимой и летом. Кроме того, они значительно легче керомогранита, но не уступают ему с точки зрения энергоэффективности.
Преимущества фиброцементных панелей: • Легкость, прочность и долговечность. • Устойчивость к ультрафиолету и перепадам температур. • Простота в обслуживании. • Широкий выбор оттенков и текстур (под кирпич, каменную крошку, дерево и т.д.).
Консультация
Планкен
Планкен представляет собой строганную доску, на углах которой делается фаски. Он просто монтируется, не требуя специального оборудования. В результате дом получает стильный и минималистичный образ в традициях скандинавского дизайна. Такие дома всегда выделяются на общем фоне и привлекают восхищенные взгляды.
Чаще всего для доски делаются из сосны или лиственницы, - но могут использоваться также дуб, ясень или кедр. У досок нет шипа и паза, они по отдельности набираются на обрешетку. В результате фасад не выглядит сплошным, - имеющийся зазор между элементами не превышает 5 мм. Планкен бывает прямой, скошенной и клиновидной формы. С точки зрения влагопроницаемости и эстетики наиболее выигрышными являются скошенный (доски укладываются внахлест) и клиновидный (доски укладываются как «чешуя») варианты.
Преимущества планкена: • Простой монтаж. • Долговечность (от 20 лет) и воздухопроницаемость. • Экологичность и стильный дизайн. • Широкий выбор под разные бюджеты.
Консультация
Имитация бруса
Декоративная облицовочная доска с системой фиксации (шип-паз) производится из деревьев хвойных пород. После первичной распилки доски сушат до определенного показателя влажности, затем профилируют и делают термодорожки на тыльной стороне. В итоговой упаковке нет пересортицы, но присутствуют доски одного размера.
В результате после облицовки получается фасад, который со стороны нельзя отличит от бруса. По сути, имитирующий его материал – это вагонка, но крупнее по размерам и более прочная. Наиболее распространенные размеры облицовочной доски: толщина – от 20 до 40 мм, ширина – 110-200 мм, длина – от 2 до 6 м. Как и обычный брус, она нуждается в особом уходе с использованием защитных покрытий (от влаги, ультрафиолета и возгорания).
Преимущества отделки с имитацией бруса: • Оптимальная стоимость – можно выбрать разные сорта доски (А, В и С). • Стандартный монтаж, при котором можно внутри дома можно спрятать все провода, трубы и дефекты стен. • Удерживает тепло в доме и увеличивает шумоизоляцию. • Натуральная имитация – облицовочная доска со стороны не отличается от профилированного бруса.
Консультация
Материал кровли
A TRUE NORTHERN PLAYA
Get around by train, bus, car, steamship, cruise ship, bicycle, skis or sleigh. Relax and enjoy your time
Современный вариант выполнения кровли, обладающий максимумом преимуществ: эстетика, технологичность.
Металлочерепица
Металлочерепица – это ленты или панели из прессованного металла с цветным защитным покрытием. Самый популярный материал, выбираемый для кровли, - прежде всего, благодаря доступной цене. Может использоваться на крыша разных конфигураций. При соблюдении технологически требований кровля из металлочерепицы получается долговечной, радуя своего владельца в течение многих лет.
Тем не менее, выбирая данный материал, необходимо учитывать его особенности. В частности, если разрушается верхний слой краски, бывает непросто подобрать подходящий оттенок. Когда разные части крыши выглядят неодинаково, внешний вид дома ухудшается.
Еще один момент, к которому нужно быть готовым. Поскольку кровля выполняется из металла, когда идет дождь, капли громко барабанят по крыше. Поэтому в мансардном этаже может быть шумно.
В целом, металлическая кровля используется в простых проектах с несложной архитектурой. Это доступный, бюджетный вариант. Из-за особенностей геометрии крыш из металла (наличия скатов и примыканий) при их устройстве остается много обрезков.
Преимущества кровли из металлочерепицы:
Доступная цена.
Легкость и прочность.
Долговечность.
Надежно защищает от влаги (При соблюдении технологий).
Консультация
Мягкая черепица
Мягкая черепица производится на битумной основе. Допустимым для нее является наклон крыши до 12 градусов. Стоит она несколько дороже, чем металлическая, - при этом среди мягкой черепицы есть премиальные предложения от финских брендов, которые выделяются эффектным внешнем видом.
Необходимо учитывать, что, если дом стоит в лесу, и на крышу попадают семена деревьев или мха, - она может прорасти, превратившись в эко-крышу помимо желания владельцев. По этой причине мы не рекомендуем покрывать мягкой черепицей дома, стоящие, например, в сосновом лесу.
Преимущества мягкой черепицы:
Ровная поверхность (без волн и гофров).
На плоскости можно создавать очень разнообразные узоры - под брусчатку, объемные и т.п.
Легкий материал, который не шумит, когда идет дождь или падают ветки.
Отлично подходит для кровли мансардных этажей.
Консультация
Фундамент:
GETTING HERE AND AROUND
You can get around by train, bus, car, steamship, cruise ship, bicycle, skis or sleigh. Relax and enjoy it.
Read more
GETTING HERE AND AROUND
You can get around by train, bus, car, steamship, cruise ship, bicycle, skis or sleigh. Relax and enjoy it.
Read more
GETTING HERE AND AROUND
You can get around by train, bus, car, steamship, cruise ship, bicycle, skis or sleigh. Relax and enjoy it.
Имеет большую несущую способность и увеличивает полезную площадь дома.
Свайно-ростверковый
Свайно-ростверковый фундамент является смешанным, - в нем применяются бетонные сваи, соединенные друг с другом бетонной лентой или сплошной плитой (это и есть ростверк - он располагается сверху свай). Сваи заглубляются ниже уровня промерзания почвы. Смысл использования ростверка заключается в равномерном распределении нагрузки на сваи.
Существуют несколько видом такого фундамента: сборный, состоящий из свай, армированных сварным каркасом (для его установки нужен кран); монолитно-железобетонный (заливается на стройплощадке); сборно-монолитный (смешанный вариант). При выборе свайно-ростверкового фундамента надо учитывать, что подходит для зданий не выше двух этажей, есть определенные сложности с оборудованием цокольного этажа, для монтажных работ нужна спецтехника. И, конечно, важны точные расчеты при проектировании.
Преимущества свайно-ростверкового фундамента:
Подходит для любых грунтов (даже подвижных и неустойчивых).
Экономный расход материалов.
Долговечность (служит десятки лет).
Можно монтировать в разных погодных условиях.
Хорошая несущая способность.
Консультация
Монолитная железобетонная плита
Одним из популярныхх видом монолитны фундаментов является утепленная шведская плита (УШП). УШП укладывается на плотную почву, после того как с нее снимут плодородный слой и положат песок. Основание выстилается экструдированным пенополистиролом. И на него кладется связанная арматура, трубы теплого пола и заливается бетон. Причем, заливка выполняется за один прием (для свайного фундамента требуется две заливки). В этом заключаются два главных преимущества УШП – технологичность и относительная быстрота строительства (около двух недель), а также то, что он сразу становится полом в строящемся доме – поверх УШП можно уже выполнять отделку (укладывать плитку и т.п.).
К недостаткам УШП можно отнести ограничения по высоте – часто на таком фундаменте можно построить дом максимум с одним этажом и мансардой. Однако наши конструкторы могут предложить решения, построить дом с нужной этажностью. Также УШП предъявляет высокие требования к выравниванию поверхности, - такие работы необходимо вести качественно, проверять с уровнем.
Преимущества монолитной железобетонной плиты:
Большая площадь опоры, снижающая нагрузку на фундамент.
Относительная простота и скорость монтажа.
Возможность устройства цокольного этажа.
Подходит для грунтов со слабой несущей способностью.
Плита используется как основа пола первого этажа.
Консультация
Винтовые металлические сваи
Фундамент на винтовых сваях является отличным решением для строительства домов небольшой этажности. Он подходит для различны типов грунта, - в том числе для подвижных (даже для болотистой местности). В силу этих факторов он идеально подходит для деревянного и каркасного домостроения.
Технология строительства в общих чертах понятна из названия: сваи похожи на шурупы (состоят из металлического ствола, лопастей и оголовка), и они ввинчиваются в землю механическим способом (или вручную). Процесс является относительно простым, что обусловливает быстроту возведения такого типа фундамента. Для установки фундамента нет необходимости выравнивать основание, также не является помехой наличие подземных коммуникаций. Фундамент на винтовых сваях можно строить в любое время, а прослужит он долго (100 лет и больше).
Преимуществ фундамента на винтовых сваях: • Надежность и долговечность. • Быстрота строительства (экономия времени). • Универсально и быстрота возведения. • Доступные цены.
Консультация
Железобетонные сваи
Данный вид фундамента стал широко использоваться, благодаря появлению небольшого размера машин для забивания свай длинной 3 – 4 м. Таким образом, железобетонные сваи вводятся в грунт вбиванием - с помощью гидравлическим молотом). Другим вариантом является вдавливание, когда бетон заливается в пробуренные для свай отверстия. Фундамент на железобетонных сваях является одним из самых надежны и долговечных. При его строительстве применяется качественный бетон (марки 300). Такой фундамент отличается высокой несущей способностью (они подходят для промышленных зданий), которую к тому же можно точно рассчитать, если выполнить анализ грунта.
Железобетонные сваи можно устанавливать практически в любое время года, в том числе зимой. На них можно установить деревянный ростверк (для каркасного дома или дома из бруса). Также их можно связать арматурой в единый каркас с железобетонным ростверком (для кирпичных домов или домов из газоблоков). Это позволяет оборудовать в доме цокольный этаж.
Преимущества фундамента на железобетонных сваях: • Надежность и долговечность. • Высокая несущая способность. • Универсальность и технологичность. • Возможность оборудовать цокольный этаж в доме.
Консультация
Монолитный цоколь
Отметка пола цокольного этажа расположена ниже уровня горизонта, не превышая при этом половины высоты здания. В основе цокольного этажа находится монолитная плита или железобетонная лента на подушке из песка или щебня (ниже уровня промерзания).
Стены цокольного уровня необходимо утеплять, чтобы поддерживать в этом помещении оптимальную температуру. Возможность строительства цокольного этажа зависит от уровня грунтовых вод (УГВ). Поэтому перед началом работ нужно провести геологические изыскания. При высоком УГВ необходимо применять бетон влагостойких марок и оборудовать дренажную систему.
Создание монолитного цоколя связано с дополнительным расходом материалов, что повышает стоимость строительства дома. Она в полтора раза дороже, чем для ленточных фундаментов. Однако затраты оправдывают себя, поскольку в дополнительных помещениях можно разместить бойлерную, домашний кинотеатр, спортивный зал, сауну и т.п.
Преимущества монолитного цоколя:
Увеличения полезной площади здания.
Возможность увеличения этажности здания.
Консультация
Отделка внутри дома:
GETTING HERE AND AROUND
You can get around by train, bus, car, steamship, cruise ship, bicycle, skis or sleigh. Relax and enjoy it.
Read more
GETTING HERE AND AROUND
You can get around by train, bus, car, steamship, cruise ship, bicycle, skis or sleigh. Relax and enjoy it.
Read more
GETTING HERE AND AROUND
You can get around by train, bus, car, steamship, cruise ship, bicycle, skis or sleigh. Relax and enjoy it.
Вариант строительства, который экономит время и средства заказчика, оставляя свободу для самовыражения.
Под ключ по дизайн-проекту
Внутренняя отделка дома под ключ состоит из нескольких этапов: разработка дизайн-проекта, оборудование инженерных систем, черновую и чистовую отделку и завершающие работы. В результате заказчик получает коттедж, где установлены окна и двери, стены выровнены и окрашены (или на ни поклеены обои), сделан пол, оборудована кухня и санузлы.
Как именно будет выполнена отделка зависит от пожеланий и возможностей клиента. Все детали обсуждаются при подготовке дизайн-проекта. Идеи, которые могут быть реализованы на практике, принимаются и воплощаются в жизнь. Весь большой объем работ, связанный с отделкой под ключ, выполняет в соответствии со строительными нормами.
Преимущества отделки под ключ:
Дом готов для постоянного проживания.
Оптимальные расходы (если клиент не планирует дальнейших вложений и ограничен во времени).
Возможность получения дохода – от сдачи в аренду или выгодной продажи.
Консультация
Отделка стен гипсокартоном
Гипсокартон используется, чтобы создать в доме ровные поверхности. Тем самым стены будут подготовлены для финишной отделки. В отделке используется несколько видов гипсокартона: обычный (разной толщины), теплоизоляционный и пароизоляционный, а также подстилающий.
Преимуществом гипсокартона являются небольшой вес, экологичность и простота монтажа (кроме того, не нужно ждать его высыхания). В процессе крепежа листы фиксируются к стойкам каркаса гвоздями или шурупами, после чего их сразу же можно красить или покрывать обоями. Также можно предусмотреть дополнительный утепляющий слой, если разместить до монтажа на стене слой минеральной ваты и пароизоляцию (затем они будут укрыты листами гипсокартона). Чтобы снизить отходы, листы можно крепить как вертикально, так и горизонтально, - в зависимости от геометрии помещения.
С эстетической точки зрения возможен вариант отделки, в котором присутствуют различные варианты отделки. Когда вместе комбинируются гипсокартон и вставки, имитирующие брус, возникает изысканный результат – на фоне крашенных или покрытых обоями стен выигрышно смотрятся акценты из натурального дерева.
Вариант отделки гипсокартон+дерево сочетает преимущества обоих вариантов: простоту монтажа, экологичность, надежность (к перепадам температур и влажность), аа также эстетические характеристики. В данном случае дизайнерские решения получают дополнительное измерение свободы, где встречаются разные текстуры, цвета, узоры и орнаменты!
Преимущества отделки гипсокартон+дерево: • Экологичность и эстетика. • Простота и удобство монтажа. • Максимально широкий выбор материалов и цен. • Долговечность и удобство эксплуатации.
Консультация
Имитация бруса
Дерево является экологичным природным материалом, который украшает любое помещение, придавая ему изысканный стиль.
У отделки стен имитацией бруса много преимуществ. Внешне фальш-брус не отличается от более дорогих материалов (профилированного или клееного бруса). Он обладает отличной шумоизоляцией, повышает энергоэффективность дома, не усаживается и не покрывается трещинами. Кроме того, панели, имитирующие брус, относительно просто монтируются и благодаря надежным креплениям образуют крепкий и целостный каркас.
Выбирая отделку стен имитацией бруса, вы может использовать как качественные и недорогие материалы (сосну, ель и др.), так и премиальные (кедр, дуб, южную древесину). Существует широкий ассортимент текстур, оттенков и даже ароматов, - на любой, даже самый взыскательный вкус!
Преимущества отделки имитацией бруса: • Эстетика и экологичность. • Простота монтажа. • Широкий ценовой диапазон. • Свойства материала (шумоизоляция, энергоэффективность).
Консультация
Вагонка
Вагонка позволяет оформить практически любое помещение в симпатичном деревенском стиле, скрыть проблемный материал стен, провода и трубы инженерных систем. Она легко монтируется, не требуя супер квалификации рабочих, и также легко ремонтируется.
Комнаты, обшитые вагонкой, выглядят светло, уютно, от стен приятно пахнет деревом. При этом нужно учитывать особенности материала – дерево имеет иную прочность, чем камень, недостаточную влагостойкость, его надо подвергать финишной обработке (пропитывать лаками, обессолить и т.п.). На строительном рынке присутствует широкий ассортимент вагонки: евровагонка, имитация бруса или бревна и т.п. При укладке она крепится на обрешетку. Привлекательный внешний вид, экологичность, простота монтажа и ремонта являются причиной высокой популярности это варианта внутренней отделки домов.
Преимущества отделки вагонкой:
Эстетическая привлекательность.
Хорошая теплоизоляция и шумопоглощение.
Экологичный материал.
Долговечность и простота монтажа, ремонтопригодность.
Консультация
Без отделки
Дом без отделки не готов проживания, он больше похож на коробку или сруб. Однако в некоторых случаях для заказчика отсутствие отделки является необходимым или выгодным.
У заказчика строительства могут быть разные обстоятельства. Однако в этом случае нужно учитывать некоторые нюансы. В дом нельзя сразу заселиться, приходится потратить время на подготовку проекта оформления, поиск мастеров и т.п. Также надо следить за тем, что характеристики дома не ухудшились из-за простоя, чтобы он не был поврежден из-за погоды и м т.п.
Преимущества дома без отделки:
Экономия времени и средств.
Возможность оформить дом в собственном стиле.
Распределение строительства на этапы, удобные собственнику.
Самостоятельный ремонт позволяет контролировать все этапы работы.
Консультация
У вас есть рабочие? Купите проект дома и постройте его самостоятельно
Купите рабочий проект дома и постройте дом самостоятельно
Технический надзор на период строительства со скидкой 25%